wohnhof 706 | leverkusen hitdorf

format3 Projektentwicklung: Neubau von acht modular erweiterbaren Wohngebäuden in Leverkusen Hitdorf.

umbau bauernhof | wohnanlage mit gemeinschaftsflächen

2021

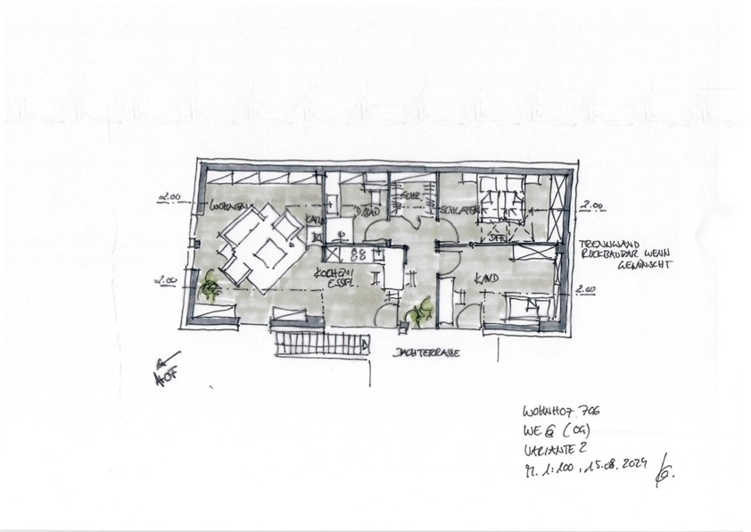
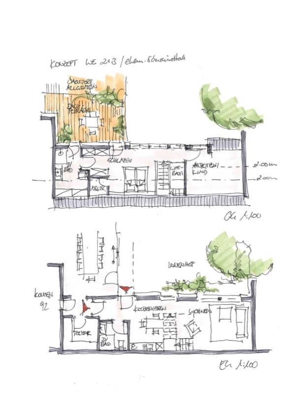
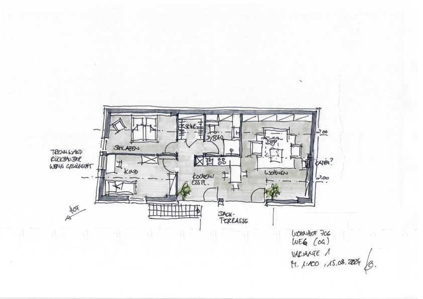
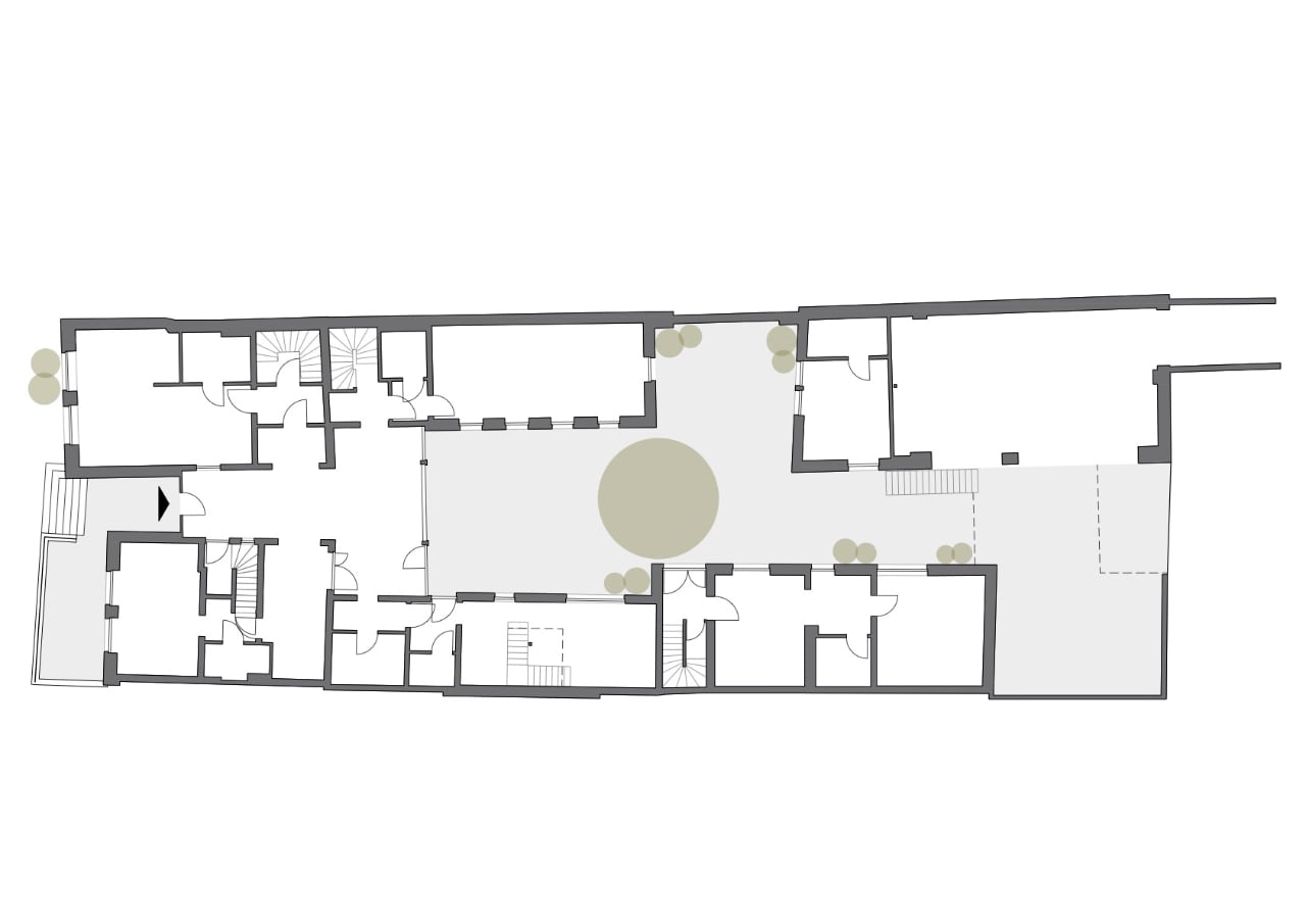
Mit dem Projekt Wohnhof706 wird ein ehemaliger Bauernhof in Leverkusen-Hitdorf in eine moderne Wohnanlage mit gemeinschaftlich nutzbaren Flächen umgewandelt. Die besondere Lage am Rhein und der historische Bestand bildeten die Grundlage für ein sensibles Umbaukonzept, das Tradition und zeitgemäßes Wohnen verbindet. Die umfassende Projektentwicklung und Planung umfasste alle Leistungsphasen – von der ersten Idee bis zur Fertigstellung.

auftraggeber

bauzeit Bauträger GmbH & Co. KG

entwurf

format3 gmbh, architekten+ingenieure

leistungen

Grundlagenermittlung, Vorplanung, Entwurfsplanung, Genehmigungsplanung, Ausführungsplanung, Vorbereitung der Vergabe, Mitwirkung bei der Vergabe, Objektüberwachung / Bauüberwachung und Dokumentation