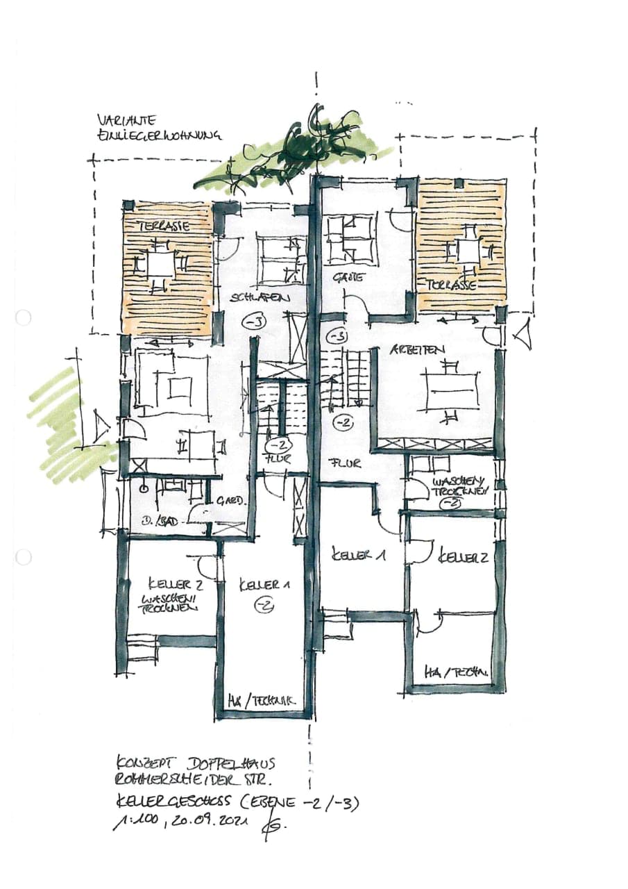
wohnensemble am hang | bergisch gladbach

Planung von 4 Doppelhaushälften und 2 Einfamilienhäuser | Grundstück mit steiler Hanglage und Buchenwaldbestand, format3 gmbh

wohnensemble in splitlevel-bauweise

2021

Auf einem steilen Hanggrundstück mit altem Buchenwaldbestand entstand die Planung für ein außergewöhnliches Wohnensemble: Vier Doppelhaushälften und zwei Einfamilienhäuser, die sich in Splitlevel-Bauweise sensibel in das Gelände einfügen. Das Konzept verbindet naturnahes Wohnen mit architektonischer Raffinesse – ein modernes Baumhausgefühl mit Blick ins Grüne.

auftraggeber

Privat

entwurf

format3 gmbh, architekten+ingenieure

leistungen

Projektinitiierung, Projektkonzeption, Bestandserfassung, Entwurf