friesenstraße | köln

Sanierung und Erweiterung eines Gebäudes in der Friesenstraße in Köln, format3 architekten+ ingenieure

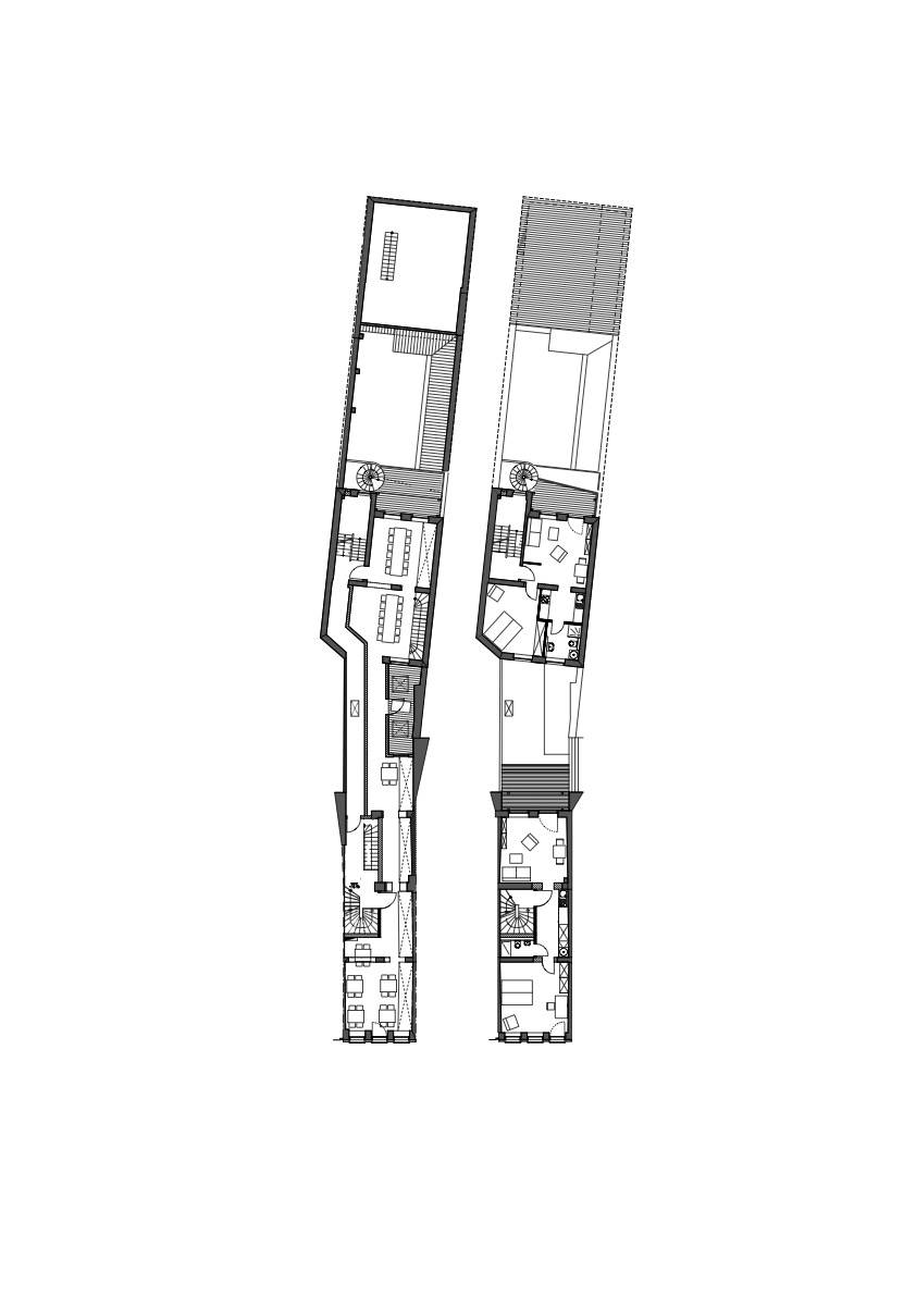
sanierung & erweiterung | köln

2010

Im lebendigen Zentrum Kölns wurde ein bestehendes Gebäude umfassend saniert und erweitert. Die Maßnahmen umfassten die Kernsanierung, den Anbau von Altanen, Balkonen, Dachterrassen und Gauben sowie die Erweiterung der Gaststätte im 1. Obergeschoss. Zusätzlich wurde ein Biergarten geschaffen, die Fassade saniert, das Hofgebäude aufgestockt und zur Küche mit Lager umgenutzt. Das Ergebnis: ein urbanes Ensemble aus Bar und Apartmenthaus mit Charakter.

auftraggeber

Dr. Küster Grundbesitz GmbH

entwurf

format3 gmbh, architekten+ingenieure

leistungen

Grundlagenermittlung, Entwurf, Genehmigungsplanung, Ausführungsplanung, Ausschreibung und Vergabe, Bauüberwachung