grundschule + gymnasium | odenthal

Neubau Grundschule und Erweiterung Gymnasium Odenthal

neubau grundschule odenthal | erweiterung gymnasium odenthal

2023

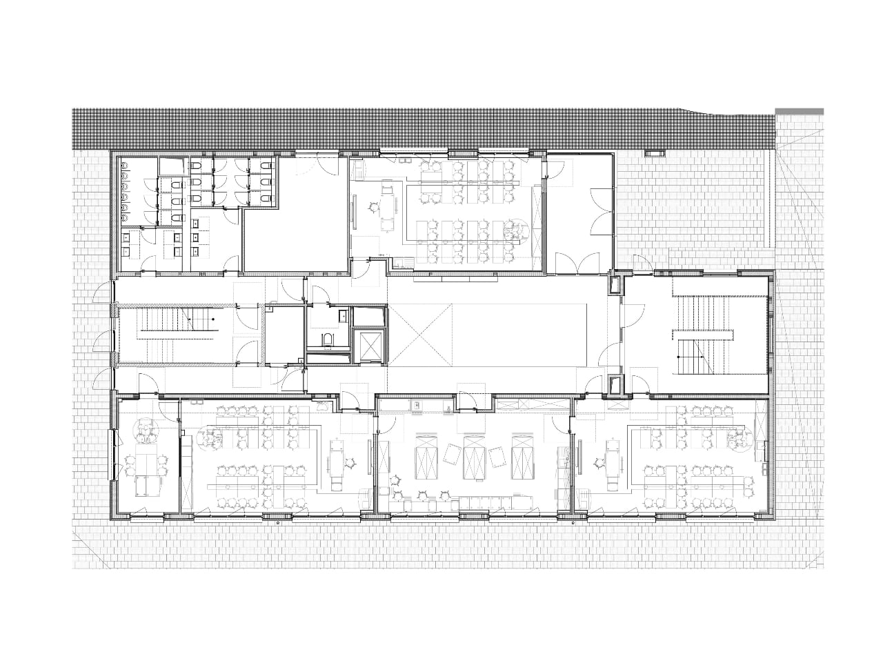
Mit dem Neubau der Grundschule in Odenthal entsteht ein zukunftsweisender Bildungsort in nachhaltiger Holzbauweise. Die Planung und Koordination durch format3 umfasst zentrale Leistungsphasen – von der Genehmigungs- bis zur Ausführungsplanung. Das Projekt vereint pädagogische Anforderungen mit ökologischer Verantwortung und schafft eine warme, natürliche Lernumgebung für kommende Generationen.

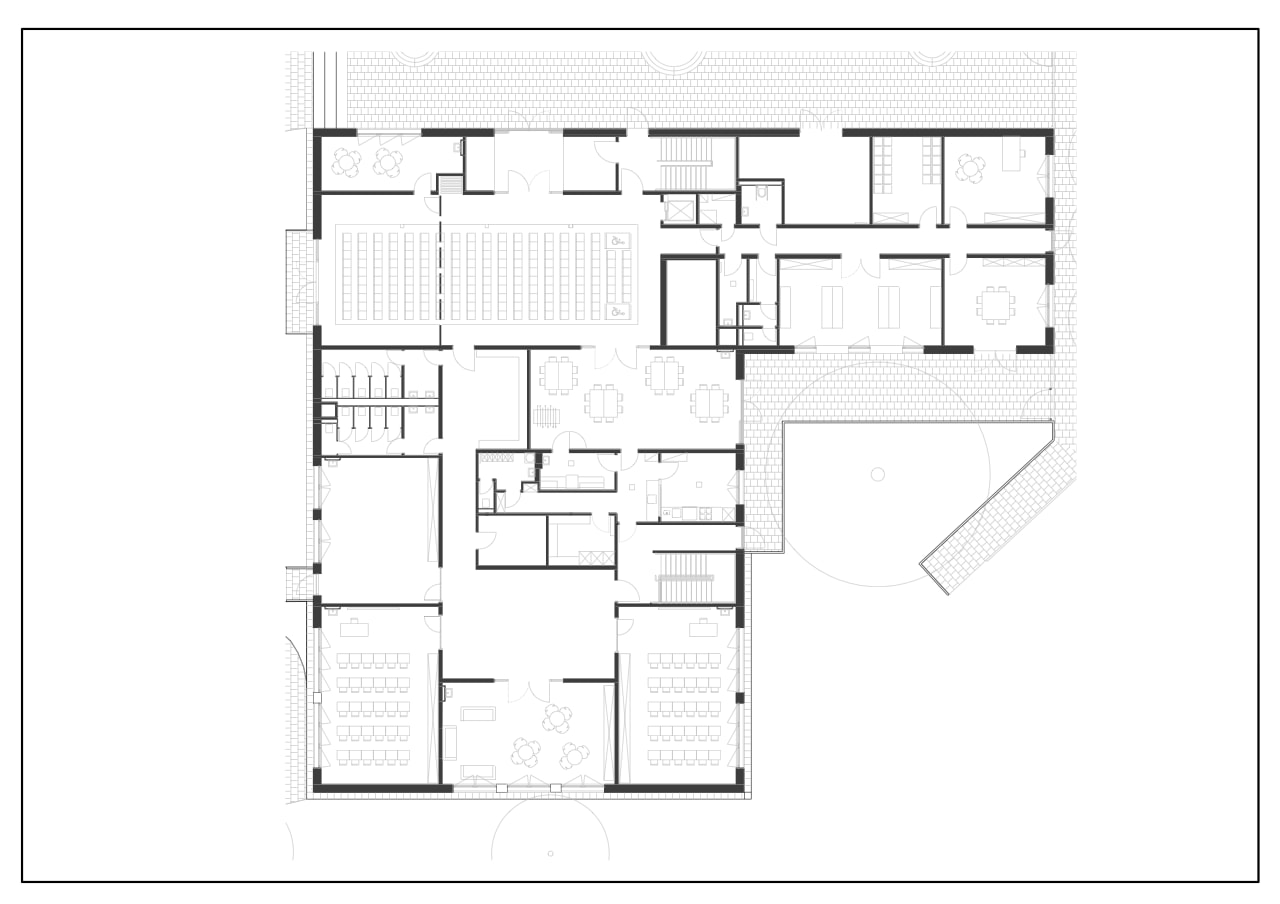
Im Rahmen eines umfassenden Bildungskonzepts wird das Gymnasium Odenthal durch einen nachhaltigen Neubau in Holzbauweise erweitert – als direktes Folgeprojekt zur benachbarten Grundschule. Die Erweiterung schafft moderne Lernräume mit hoher Aufenthaltsqualität und wird von format3 in zentralen Planungs- und Koordinationsleistungen begleitet. Gemeinsam bilden beide Schulbauten ein zukunftsorientiertes Ensemble für Bildung und Nachhaltigkeit.

auftraggeber

Gemeinde Odenthal

entwurf

RKW Architektur +

leistungen

Genehmigungsplanung, Ausführungsplanung, Ausschreibung und Vergabe, Planungskoordination,Planungsleitung, Planverwaltung