nachbarschaft | leverkusen hitdorf

Projektentwicklung für ein nachbarschaftlich orientiertes Mehrgenerationenwohnen in Leverkusen Hitdorf, format3 gmbh

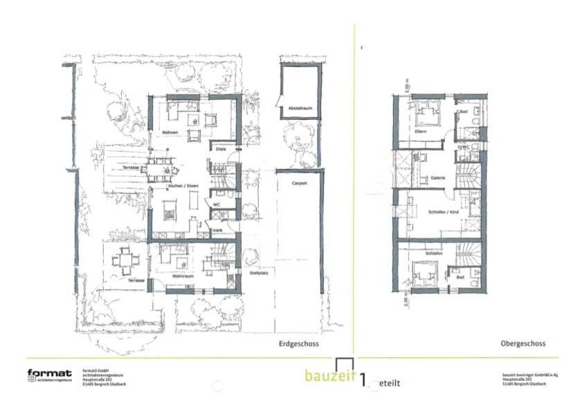
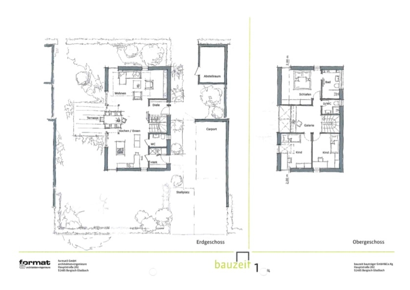
wohnkonzept mehrgenerationenwohnen

2017 – 2019

Für ein Grundstück in Leverkusen-Hitdorf wurde ein innovatives Wohnkonzept mit acht modular erweiterbaren Wohneinheiten entwickelt. Das städtebauliche Ziel: ein nachbarschaftlich orientiertes Mehrgenerationenwohnen mit gemeinschaftlich genutztem Gartenraum.

auftraggeber

bauzeit Bauträger GmbH & Co. KG

entwurf

format3 gmbh, architekten+ingenieure

leistungen

Projektinitiierung, Projektkonzeption, Bestandserfassung, Entwurf, Genehmigungsplanung, Ausführungsplanung