gut blee | monheim

neu- und erweiterungsbau fünffamilienhaus | monheim

2021

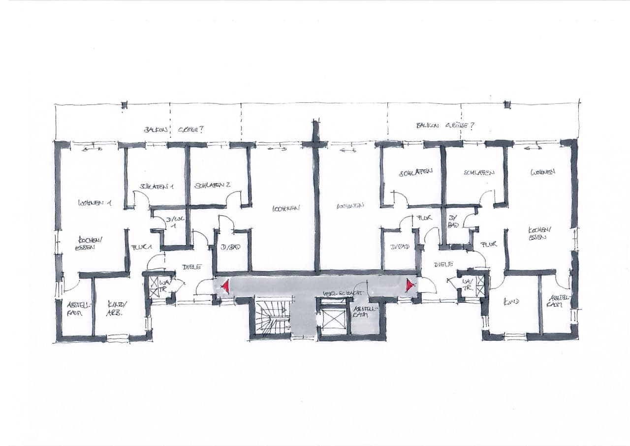
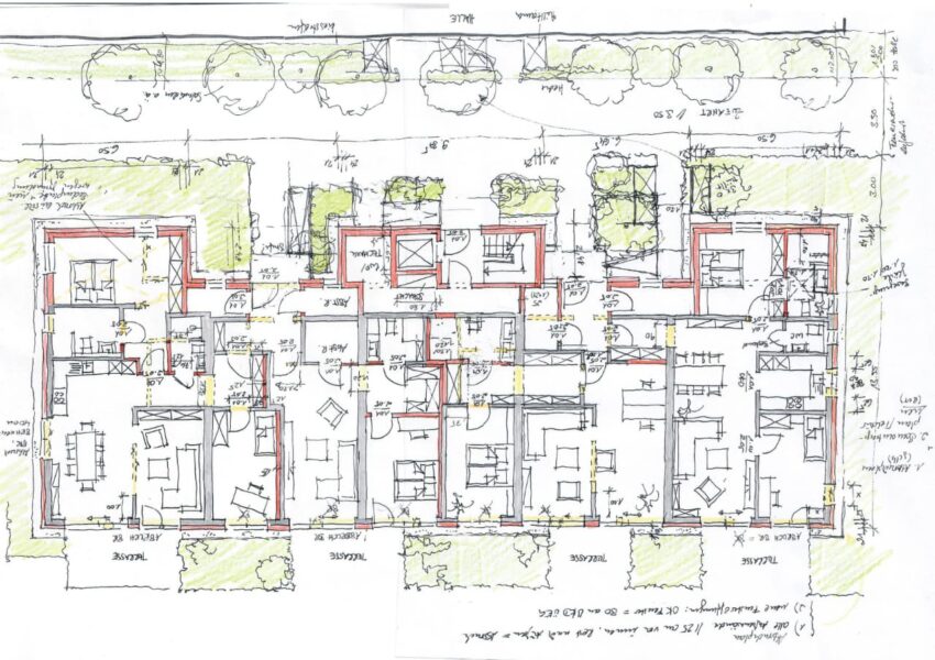
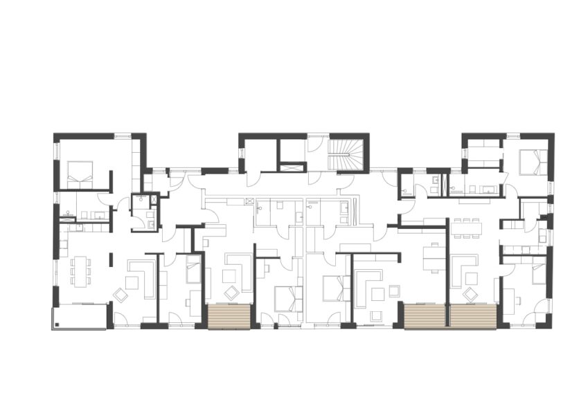
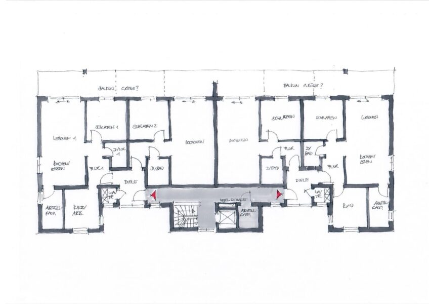
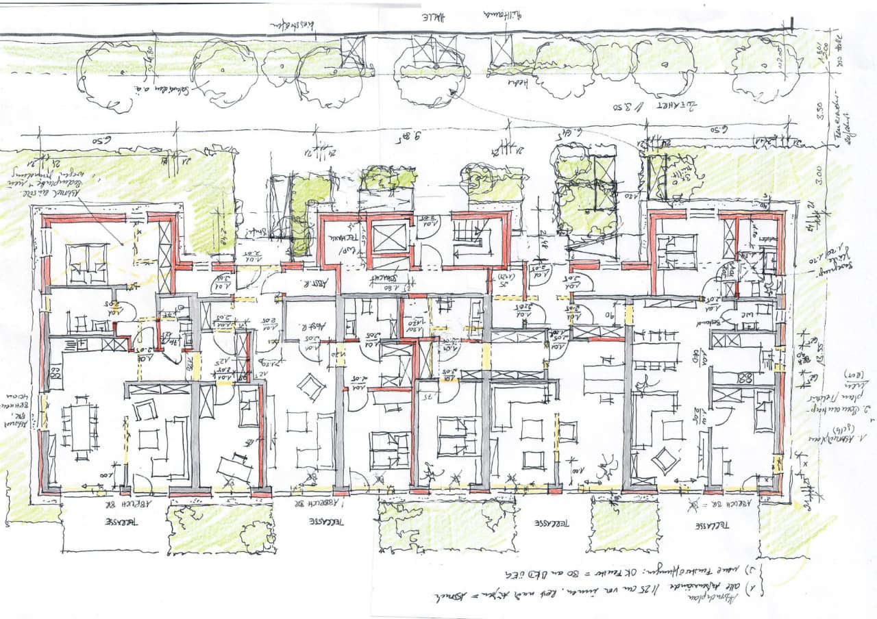
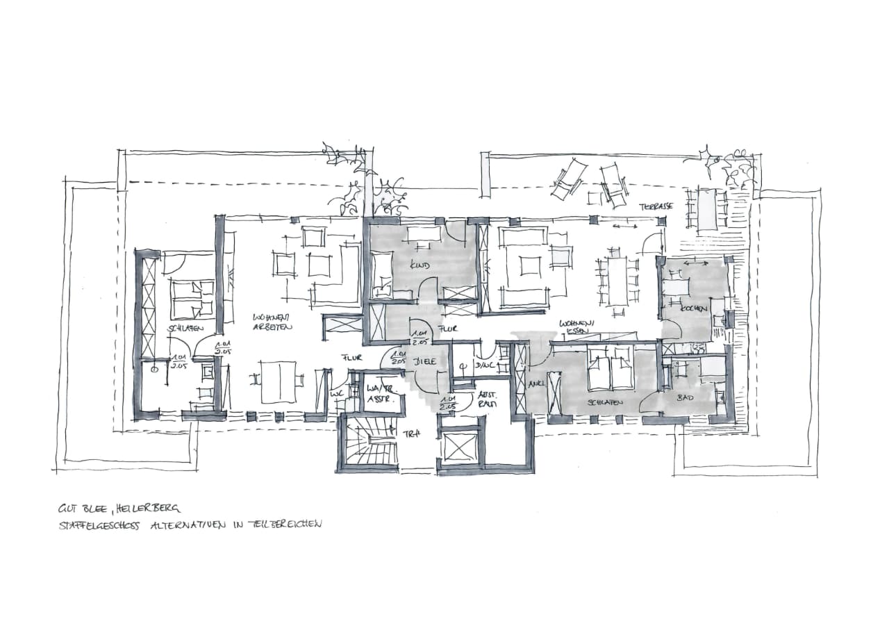
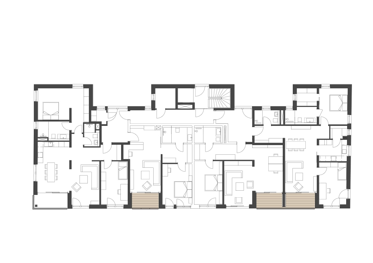
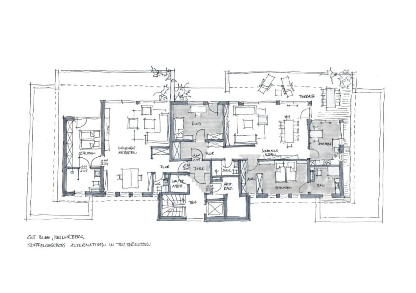
Nach einem Brandschaden wurde eine bestehende Immobilie in Monheim umfassend weiterentwickelt und zu einem modernen Fünffamilienhaus mit barrierefreien Zwei-Generationen-Wohnungen umgebaut und erweitert. Das Projekt verbindet zeitgemäße Architektur mit sozialem Anspruch – für generationenübergreifendes Wohnen in direkter Rheinnähe. Die Planung umfasste alle wesentlichen Leistungsphasen von der Grundlagenermittlung bis zur Vergabevorbereitung.

auftraggeber

Privat

entwurf

format3 GmbH, architekten+ingenieure

leistungen

Grundlagenermittlung, Vorplanung, Entwurfsplanung, Genehmigungsplanung, Ausführungsplanung, Vorbereitung der Vergabe