familienfreundliches neubaugebiet

Städtebauliches Konzept, modernes Wohnen mit ländlichem Lebensgefühl, format3 gmbh Projektplanung

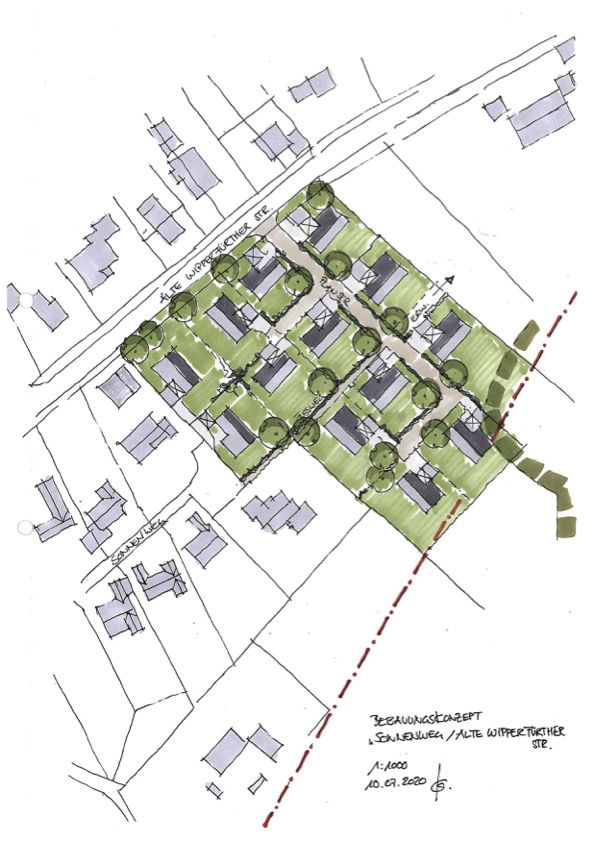
städtebauliches konzept | odenthal-eikamp

2020

Inmitten der reizvollen Landschaft von Odenthal-Eikamp entstand mit dem Projekt Am Uferchen ein städtebauliches Konzept, das modernes Wohnen mit ländlichem Lebensgefühl verbindet. Auf einer Fläche von rund 14.000 m² wurde ein nachhaltiges und familienfreundliches Neubaugebiet entwickelt. Die Planung umfasste die Projektinitiierung, die Erschließungsmaßnahmen sowie den städtebaulichen Entwurf – mit dem Ziel, ein harmonisches Wohnumfeld für Familien zu schaffen.

auftraggeber

bauzeit Bauträger GmbH & Co. KG

entwurf

format3 gmbh, architekten+ingenieure

leistungen

Projektinitiierung, Konzeption, Städtebaulicher Entwurf