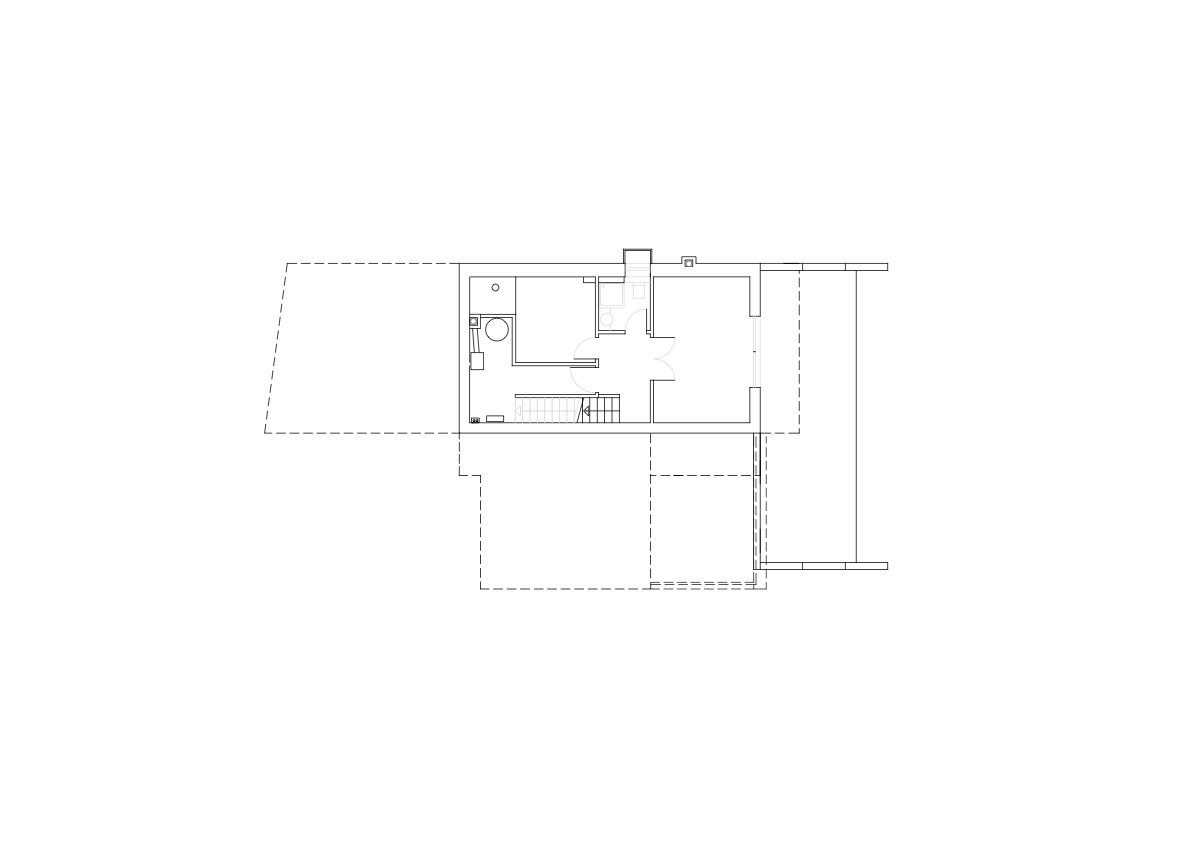
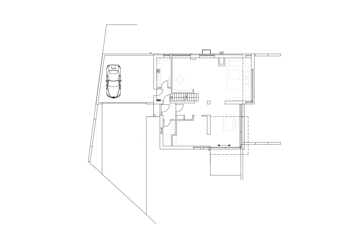
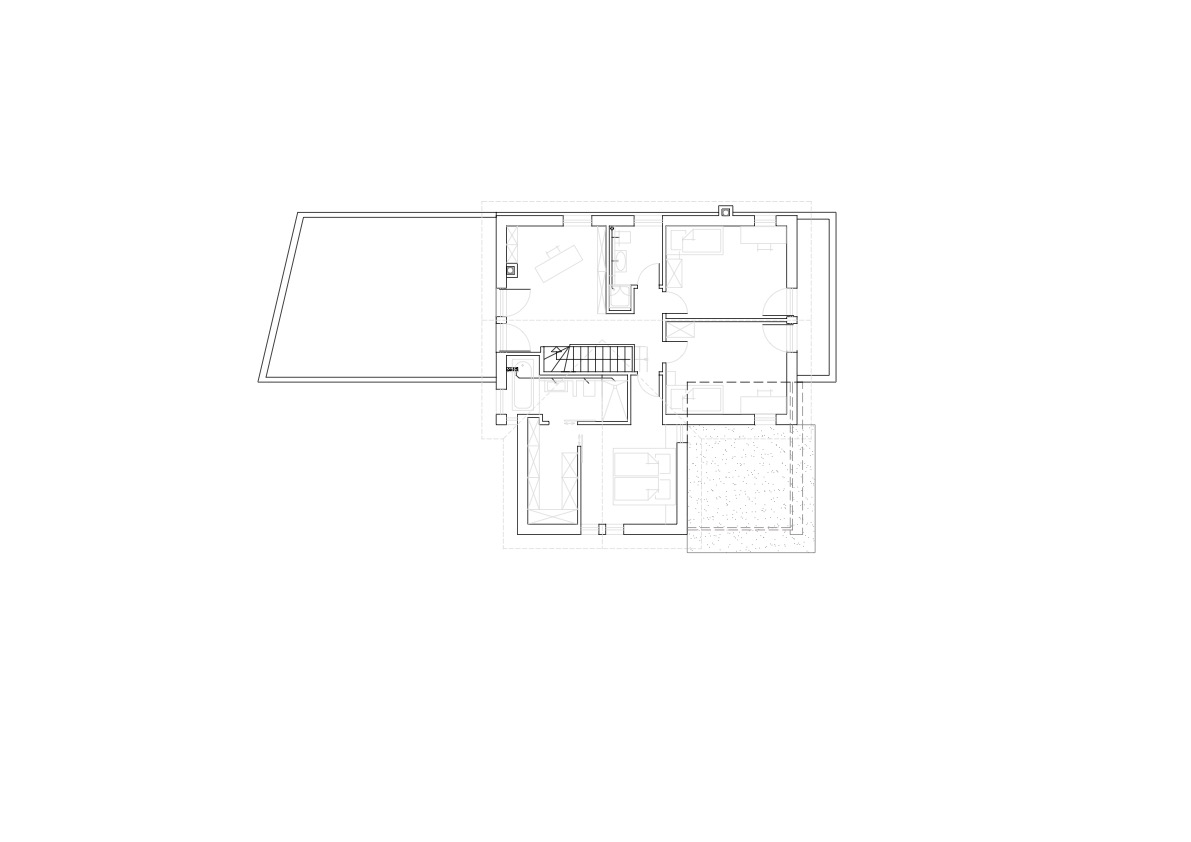
neubau einfamilienhaus

Einfamilienhaus Odenthal | Neubau format3

neubau einfamilienhaus | odenthal

2011

Inmitten der grünen Hügellandschaft von Odenthal entstand ein Einfamilienhaus, das sich harmonisch in die natürliche Hanglage einfügt. Die klare architektonische Gestaltung schafft ein modernes, lichtdurchflutetes Zuhause mit starker Verbindung zur umgebenden Natur. Von der ersten Skizze bis zur Fertigstellung übernahm das Büro format3 sämtliche Leistungsphasen – ein durchgängiger Planungs- und Bauprozess aus einer Hand.

auftraggeber

Privat

entwurf

format3 gmbh, architekten+ingenieure

leistungen

Grundlagenermittlung, Vorplanung, Entwurfsplanung, Genehmigungsplanung, Ausführungsplanung, Vorbereitung der Vergabe, Mitwirkung bei der Vergabe, Objektüberwachung / Bauüberwachung u, Dokumentation