bestattungsinstitut mit wohnung | langenfeld

Umbau und Sanierung Bestattungsinstitut mit Wohnung, format3

umbau & sanierung

2022

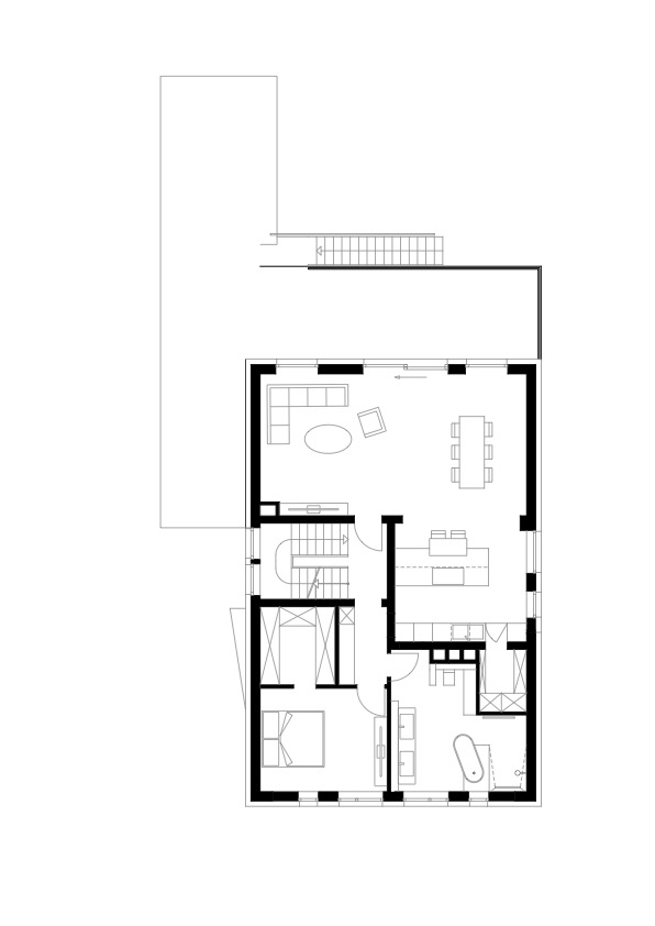
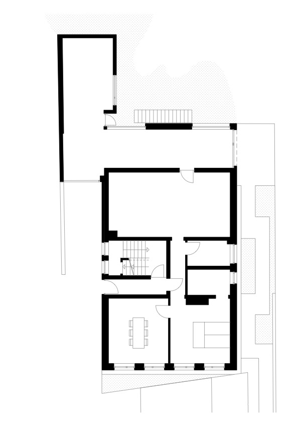
In sensibler Auseinandersetzung mit der Nutzung wurde ein bestehendes Wohngebäude in Langenfeld zu einem Bestattungsinstitut mit integrierter Wohnung umgebaut und saniert. Die Planung vereint funktionale Anforderungen mit einer ruhigen, respektvollen Gestaltung – für ein harmonisches Zusammenspiel von Wohnen und Arbeiten unter besonderen Bedingungen.

auftraggeber

Bestattungen Schneider

entwurf

format3 gmbh, architekten+ingenieure

leistungen

Grundlagenermittlung, Vorplanung, Entwurfsplanung, Genehmigungsplanung